
You can leave a legacy and further the mission of Talladega College by pledging your support to our
Celebrate the Transformation naming campaign. Our comprehensive selection of naming opportunities allows you to attach your name, or the name of an individual or business you would like to honor, to a designated space in the new residence hall (above), the Dr. William R. Harvey Museum of Art (right), the Dr. Billy C. Hawkins Student Activity Center (right, lower photo) or the new stadium.
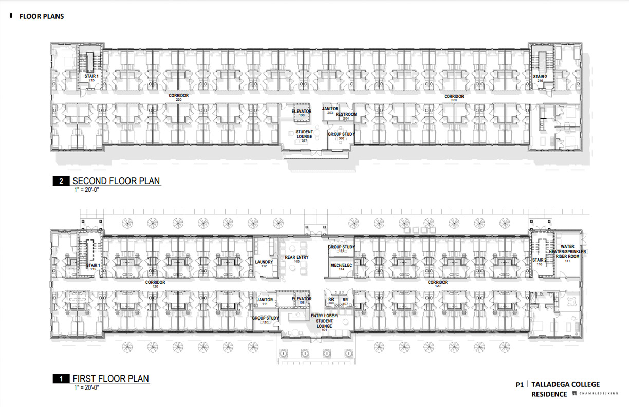
The 45,000-square-foot, state-of-the-art residence hall was the first of three new buildings to open on Talladega College's historic campus between January 2019 and August 2020.
Contact Mr. Earl Warren at ewarren@talladega.edu to purchase naming rights to spaces in the residence hall, the museum, the student center or the stadium.
|
Building: 45,000 sq ft (Level 1-3)
|
|
Entry Lobby East: 585 sq ft ($105,000)
|
|
Entry Lobby West: 563 sq ft ($101,000)
|
|
Group Study 110: 156 sq ft ($28,000)
|
|
Group Study 113: 136 sq ft ($24,000)
|
|
Student Lounge 201: 395 sq ft ($71,000)
|
|
Group Study 205: 202 sq ft ($36,000)
|
|
Honors Unit 239: 316 sq ft ($57,000)
|
|
Honors Suite 240: 634 sq ft ($114,000)
|
|
Student Lounge 301: 395 sq ft ($54,000)
|
|
Group Study 305: 202 sq ft ($36,000)
|
|
Honors Unit 339: 316 sq ft ($57,000)
|
|
Honors Suite 340: 634 sq ft ($114,000)
|